0293 新築戸建 豊中市上野東3丁目 1号地

↓お問合せ
新築戸建て [価格]6,980万円
種目 物件名 沿線
駅名
土地面積(㎡)
建物面積(㎡)
建物構造
間取
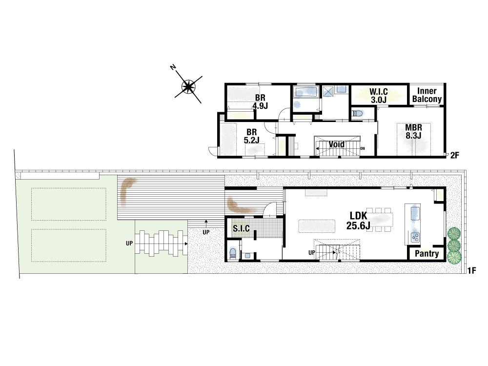
新築戸建て 新築戸建 豊中市上野東3丁目 1号地 『大阪モノレール線』少路駅 163.28
110.65
木造
3LDK+1S
↓お問合せ
新築戸建て [価格]6,980万円
種目 新築戸建て
物件名 新築戸建 豊中市上野東3丁目 1号地
沿線駅名 『大阪モノレール線』少路駅
土地面積(㎡)
建物面積(㎡)
163.28
110.65
建物構造
間取
木造
3LDK+1S

物件のポイント

  • 20帖以上の広さを確保した開放感溢れるLDK
  • W.I.CやS.I.C、パントリーなど豊富な収納を確保
  • 室内と屋外をつなぐウッドデッキ
  • 中市立上野小学校
  • 第十一中学校
  • 大阪モノレール「少路」駅徒歩約12分

物件概要

物件番号 0293 土地権利 所有権
種目 新築戸建て
物件名 新築戸建 豊中市上野東3丁目 1号地 建築確認番号
住所1 豊中市上野東3丁目 住所2 15-4
小学校区 上野小学校 中学校区 第十一中学校
交通 大阪モノレール本線「少路」歩12分
バス停手段
土地面積(㎡) 163.28 セットバック面積(㎡)
地目 宅地 現況 建築済
地勢 平坦 私道面積
建物構造 木造 西暦築年月 2026年01月
建物面積(㎡) 110.65 間取 3LDK+1S
バルコニー面積(㎡) バルコニー方向
建物階数 2階建 所在階
管理費 月額 修繕積立金 月額
管理会社 管理形態
駐車場 駐車場月額
総戸数 引渡し時期 相談
ペット飼育 リフォーム
接道(全て) 北西側 幅員約4.0m、接面約5.8m
都市計画 市街化区域 国土法届出 -
用途地域1 第一種低層住居専用地域 用途地域2
建ぺい率1 40% 建ぺい率2
容積率1 80% 容積率2
特色 吹抜階段が開放感のある新築戸建
不動産周辺状況 (周辺情報)本町2丁目 🛍買物 🛒スーパー ↓ ◎ダイエー豊中駅前店 ◎サンディ 豊中本町店 ◎シェフカワカミ 豊中店 🏪コンビニエンスストア ↓ ◎セブンイレブン 豊中千里園1丁目店 ◎ファミリーマート 豊中駅西口店 ◎ファミリーマート 豊中本町店 💊ドラッグストア ↓ ◎メディグレイス薬局 ◎メロディ薬局 ◎なの花薬局 豊中駅前店 🎏子供用品店 ↓ ◎ママフル蛍池店 ◎丸中おもちゃ ◎ワンショップモール 🧰家電量販店・ホームセンター ↓ ◎原電気株式会社 豊中駅前店 ◎有限会社富士カメラ店 ◎ソナス 🩺病院 🏥総合病院 ↓ ◎市立豊中病院 ◎市立池田病院 ◎箕面市立病院 👨‍👩‍👧‍👦小児科 ↓ ◎もりさだこどもクリニック ◎吉田小児科医院 ◎なんばこどもクリニック 🏫幼稚園 ↓ ◎B&Aサテライトスクール豊中 ◎幼保連携型認定こども園神童幼稚園 ◎たまい保育所 🛝公園 ◎玉井町4丁目第1公園 ◎高校野球記念公園 ◎千里園公園
取引条件有効期限

ローンを組むにあたり、月々の返済額をシミュレーションします。

ローンシミュレーション

物件価格
頭金 万円
金利 %
借入期間
月々の返済額
年間の返済額
返済総額
利息合計

※ 毎回の返済額が開始から終了まで均等となる「元利均等返済」で算出 ※ 金利は期間中固定となる固定金利を採用 ※ 月々の返済額は小数点以下を繰り上げ ※ 結果は目安、概算としてご利用下さい。ローンのご契約の際は詳細をご確認ください。 ※ ご契約時には諸費用・税金(手数料や印紙税、保証料など)が別途かかります。

お問合せ
お名前
メールアドレス
お問合せ内容
お名前
メールアドレス
お問合せ内容

メールを送信しました。 確認後ご返信致しますのでしばらくお待ちください。