0314 新築戸建 豊中市北条町3丁目

↓お問合せ
新築戸建て [価格]2,980万円
種目 物件名 沿線
駅名
土地面積(㎡)
建物面積(㎡)
建物構造
間取
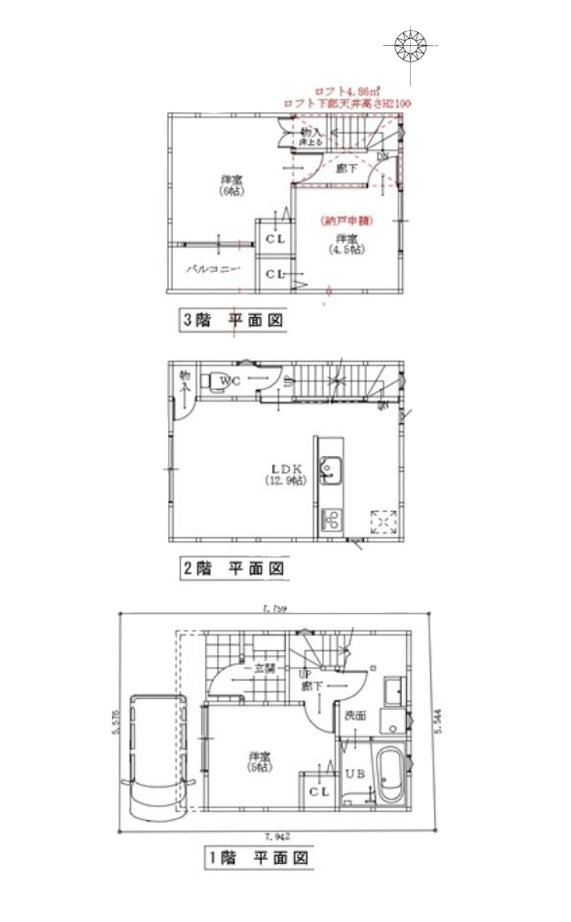
新築戸建て 新築戸建北条町3丁目 『阪急宝塚線』服部天神駅 43.96㎡
70.89㎡
木造
3LDK
↓お問合せ
新築戸建て [価格]2,980万円
種目 新築戸建て
物件名 新築戸建北条町3丁目
沿線駅名 『阪急宝塚線』服部天神駅
土地面積(㎡)
建物面積(㎡)
43.96㎡
70.89㎡
建物構造
間取
木造
3LDK

物件のポイント

  • 3LDK+ロフト部屋+車庫つき新築戸建
  • ワンボックスカー駐車可能
  • 仕様変更可能(+200万円)
  • 南向きバルコニーにつき陽当たり良好
  • 北条小学校
  • 第十六中学校

物件概要

物件番号 0314 土地権利 所有権
種目 新築戸建て
物件名 新築戸建北条町3丁目 建築確認番号
住所1 豊中市北条町3丁目 住所2 10-15
小学校区 北条小学校 中学校区 第十六中学校
交通 阪急宝塚線「服部天神」駅徒歩約15分
バス停手段
土地面積(㎡) 43.96㎡ セットバック面積(㎡)
地目 宅地 現況 未完成
地勢 平坦 私道面積
建物構造 木造 西暦築年月 2026年07月
建物面積(㎡) 70.89㎡ 間取 3LDK
バルコニー面積(㎡) バルコニー方向
建物階数 3階建 所在階
管理費 月額 修繕積立金 月額
管理会社 管理形態
駐車場 駐車場月額
総戸数 引渡し時期 指定有
ペット飼育 リフォーム
接道(全て) 西側 幅員4.4m 接道5.6m
都市計画 市街化区域 国土法届出 不要
用途地域1 第一種中高層住居専用地域 用途地域2
建ぺい率1 60% 建ぺい率2
容積率1 200% 容積率2
特色 3LDK+ロフト部屋+車庫つき新築戸建
不動産周辺状況 (周辺情報)北条町3丁目 🛍買物 🛒スーパー ↓ ◎阪急OASIS(阪急オアシス) 小曽根店 ◎生活協同組合コープこうべ コープミニ城山 ◎アカシヤ 豊中浜店 🏪コンビニエンスストア ↓ ◎ファミリーマート 豊中若竹町店 ◎ファミリーマート 豊中北条町店 ◎セブンイレブン 豊中浜1丁目店 💊ドラッグストア ↓ ◎キリン堂 おぞね店 ◎北条トモエ薬局 ◎小曽根薬局 🎏子供用品店 ↓ ◎岡部玩具 ◎西松屋 豊中服部店 ◎LUCACOH STORE(株式会社ルカコ) 🧰家電量販店・ホームセンター ↓ ◎ムセン電化 ◎さつき電気商会 ◎双和電機 🩺病院 🏥総合病院 ↓ ◎大阪回生病院 ◎大阪府済生会千里病院 ◎大阪市立十三市民病院 👨‍👩‍👧‍👦小児科 ↓ ◎ドクターしんのこどもクリニック ◎きむらクリニック小児科乳腺科 ◎なかがわ小児科 🏫幼稚園 ↓ ◎豊中市立小曽根こども園 ◎小曽根幼稚園 ◎保育所服部緑地園 🛝公園 ◎北条公園 ◎北条西公園 ◎北条町4丁目公園
取引条件有効期限

ローンを組むにあたり、月々の返済額をシミュレーションします。

ローンシミュレーション

物件価格
頭金 万円
金利 %
借入期間
月々の返済額
年間の返済額
返済総額
利息合計

※ 毎回の返済額が開始から終了まで均等となる「元利均等返済」で算出 ※ 金利は期間中固定となる固定金利を採用 ※ 月々の返済額は小数点以下を繰り上げ ※ 結果は目安、概算としてご利用下さい。ローンのご契約の際は詳細をご確認ください。 ※ ご契約時には諸費用・税金(手数料や印紙税、保証料など)が別途かかります。

お問合せ
お名前
メールアドレス
お問合せ内容
お名前
メールアドレス
お問合せ内容

メールを送信しました。 確認後ご返信致しますのでしばらくお待ちください。