更新日:2026年02月05日 16時12分
次回更新予定日:
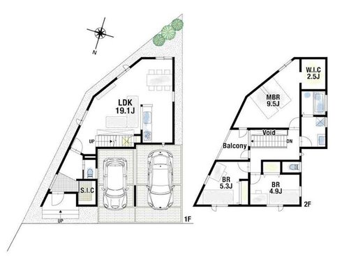
物件のポイント
- 駐車2台可能
- 吹抜けのあるリビング階段を採用したLDK
- 洗面室とバルコニーは同階に設けることで、スムーズに洗濯物を干せる動線を確保
- W.I.CやS.I.Cなど大容量の収納スペースを配置
- 豊中市立桜井谷小学校:徒歩11分
- 豊中市立第二中学校:徒歩6分(437m)
- セブンイレブン 豊中宮山町2丁目店:徒歩7分
- FRESCO(フレスコ) 桜井店:徒歩11分
物件概要
物件番号
0286
土地権利
所有権
種目
新築戸建て
物件名
新築戸建 豊中市宮山町3丁目
建築確認番号
第KKK02402957号
住所1
豊中市宮山町3丁目
住所2
5-19
小学校区
桜井谷小学校
中学校区
第二中学校
交通
阪急箕面線「桜井」歩14分
バス停手段
ー
土地面積(㎡)
103.19
セットバック面積(㎡)
ー
地目
宅地
現況
建築済
地勢
平坦
私道面積
24.0
建物構造
木造
西暦築年月
2025年08月
建物面積(㎡)
116.04
間取
3LDK+1S
バルコニー面積(㎡)
ー
バルコニー方向
―
建物階数
3階建
所在階
ー
管理費
月額
修繕積立金
月額
管理会社
ー
管理形態
―
駐車場
有
駐車場月額
ー
総戸数
戸
引渡し時期
相談
ペット飼育
―
リフォーム
ー
接道(全て)
北4m幅(接道幅11.4m)
都市計画
市街化区域
国土法届出
-
用途地域1
第一種中高層住居専用地域
用途地域2
ー
建ぺい率1
60%
建ぺい率2
ー
容積率1
150%
容積率2
ー
特色
吹抜のある新築 駐車2台可
不動産周辺状況
(周辺情報)宮山町3丁目
🛍買物
🛒スーパー ↓
◎フレスコ 桜井店
◎阪急OASIS(阪急オアシス) 箕面店
◎阪急桜井市場
🏪コンビニエンスストア ↓
◎セブンイレブン 豊中宮山町2丁目店
◎ファミリーマート 箕面半町店
◎セブンイレブン 豊中桜の町5丁目店
💊ドラッグストア ↓
◎福島薬店
◎水谷薬局
◎サーバ 豊中宮山店調剤
🎏子供用品店 ↓
◎西松屋 豊中永楽荘店
◎いしばしや
◎ママフル蛍池店
🧰家電量販店・ホームセンター ↓
◎田中無線
◎小西電化箕面店
◎久栄堂小島店
🩺病院
🏥総合病院 ↓
◎市立豊中病院
◎箕面市立病院
◎市立池田病院
👨👩👧👦小児科 ↓
◎佐守小児科
◎すくすくこどもクリニック
◎笠原小児科
🏫幼稚園 ↓
◎ほわいと保育園宮山町
◎認定こども園豊中みどり幼稚園
◎豊中市立桜井谷こども園
🛝公園
◎宮山小公園
◎赤坂上池公園
◎宮山第4公園
取引条件有効期限
ー
ローンを組むにあたり、月々の返済額をシミュレーションします。
ローンシミュレーション
※ 毎回の返済額が開始から終了まで均等となる「元利均等返済」で算出
※ 金利は期間中固定となる固定金利を採用
※ 月々の返済額は小数点以下を繰り上げ
※ 結果は目安、概算としてご利用下さい。ローンのご契約の際は詳細をご確認ください。
※ ご契約時には諸費用・税金(手数料や印紙税、保証料など)が別途かかります。