0246 新築戸建 豊中市長興寺南3丁目

↓お問合せ
新築戸建て [価格]6,980万円
種目 物件名 沿線
駅名
土地面積(㎡)
建物面積(㎡)
建物構造
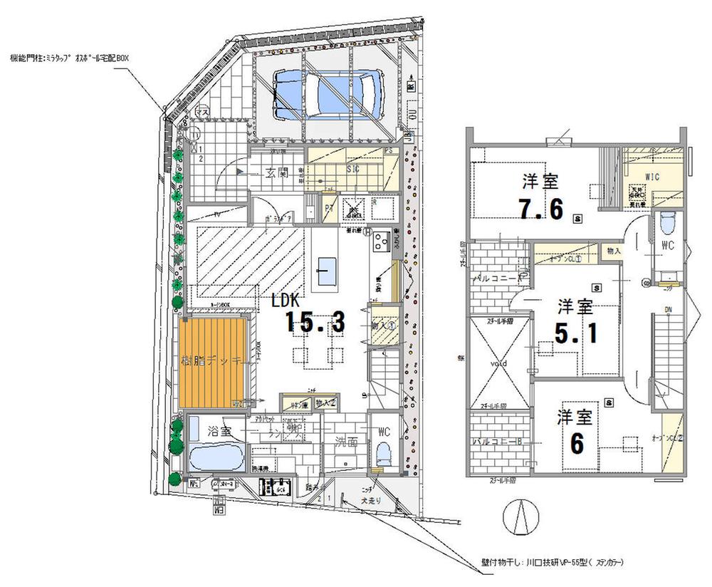
間取
新築戸建て 新築戸建 豊中市長興寺南3丁目 『阪急宝塚線』曽根駅 96.40
93.75
木造
3LDK+1S
↓お問合せ
新築戸建て [価格]6,980万円
種目 新築戸建て
物件名 新築戸建 豊中市長興寺南3丁目
沿線駅名 『阪急宝塚線』曽根駅
土地面積(㎡)
建物面積(㎡)
96.40
93.75
建物構造
間取
木造
3LDK+1S

物件のポイント

  • こだわりのデザインハウス
  • 細部までこだわり抜いた生活動線とおしゃれなデザインが魅力
  • 駐車1台可
  • 玄関スペースに洗面台あり
  • デッキスペースからLDKに光と風を取り込むことが出来ます
  • 大容量シューズインクローゼット
  • 二階トイレには洗面スペースとしても使える手洗い器を設置
  • 書斎コーナーあり
  • 長期優良住宅認定基準を満たしています!

物件概要

物件番号 0246 土地権利 所有権
種目 新築戸建て
物件名 新築戸建 豊中市長興寺南3丁目 建築確認番号 確認サービス第KS125-6120-50521号
住所1 豊中市長興寺南3丁目 住所2
小学校区 緑地小学校 中学校区 第四中学校
交通 阪急宝塚線『曽根』駅徒歩約14分
バス停手段
土地面積(㎡) 96.40 セットバック面積(㎡)
地目 宅地 現況 建築済
地勢 平坦 私道面積
建物構造 木造 西暦築年月 2025年09月
建物面積(㎡) 93.75 間取 3LDK+1S
バルコニー面積(㎡) バルコニー方向
建物階数 2階建 所在階
管理費 月額 修繕積立金 月額
管理会社 管理形態
駐車場 駐車場月額
総戸数 1戸 引渡し時期 指定有
ペット飼育 リフォーム
接道(全て) 北4.1m幅(接道幅5.2m)、北西3m幅、西4.2m幅(接道幅10.5m)
都市計画 市街化区域 国土法届出 不要
用途地域1 第一種中高層住居専用地域 用途地域2
建ぺい率1 70% 建ぺい率2
容積率1 200% 容積率2
特色 こだわりのデザインハウス
不動産周辺状況 (周辺情報)長興寺南3丁目 🛍買物 🛒スーパー ↓ ◎北乃屋長興寺店 ◎シェフカワカミ桜塚店 ◎生活協同組合コープこうべ コープミニ城山 🏪コンビニエンスストア ↓ ◎ファミリーマート 豊中長興寺店 ◎ファミリーマート 豊中長興寺北店 ◎ローソン 桜塚店 💊ドラッグストア ↓ ◎西田薬局 長興寺店 ◎あゆみ薬局 ◎アイ薬局 🎏子供用品店 ↓ ◎ワンショップモール ◎丸中おもちゃ ◎岡部玩具 🧰家電量販店・ホームセンター ↓ ◎トヨビシ電化 ◎サカイデンキ ◎タシロデンキ 🩺病院 🏥総合病院 ↓ ◎市立豊中病院 ◎大阪府済生会千里病院 ◎大阪回生病院 👨‍👩‍👧‍👦小児科 ↓ ◎なかがわ小児科 ◎ドクターしんのこどもクリニック ◎なんばこどもクリニック 🏫幼稚園 ↓ ◎あけぼの保育園 ◎あけぼのぶんぶん ◎豊中あけぼの保育園 🛝公園 ◎長興寺公園 ◎長興寺南公園 ◎城山町1丁目公園
取引条件有効期限

ローンを組むにあたり、月々の返済額をシミュレーションします。

ローンシミュレーション

物件価格
頭金 万円
金利 %
借入期間
月々の返済額
年間の返済額
返済総額
利息合計

※ 毎回の返済額が開始から終了まで均等となる「元利均等返済」で算出 ※ 金利は期間中固定となる固定金利を採用 ※ 月々の返済額は小数点以下を繰り上げ ※ 結果は目安、概算としてご利用下さい。ローンのご契約の際は詳細をご確認ください。 ※ ご契約時には諸費用・税金(手数料や印紙税、保証料など)が別途かかります。

お問合せ
お名前
メールアドレス
お問合せ内容
お名前
メールアドレス
お問合せ内容

メールを送信しました。 確認後ご返信致しますのでしばらくお待ちください。