2372 豊中柴原シティハウス(3階部分)

↓お問合せ
中古マンション [価格]3,690万円
種目 物件名 沿線
駅名
土地面積(㎡)
建物面積(㎡)
建物構造
間取
中古マンション 豊中柴原シティハウス(3階部分) 『大阪モノレール線』柴原阪大前駅
96.13
RC
3DK+1S
↓お問合せ
中古マンション [価格]3,690万円
種目 中古マンション
物件名 豊中柴原シティハウス(3階部分)
沿線駅名 『大阪モノレール線』柴原阪大前駅
土地面積(㎡)
建物面積(㎡)

96.13
建物構造
間取
RC
3DK+1S

物件のポイント

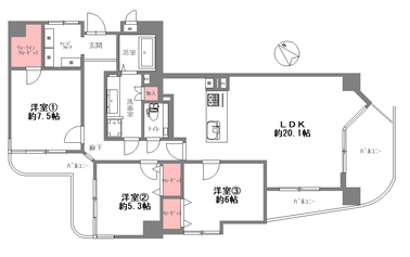
  • 広々リビング約20帖
  • ペット飼育可
  • 2面バルコニーにつき陽当たり、通風環境良好
  • WIC付き!収納スペースがたくさんあり、お部屋をスッキリ見せることができます
  • 2025年9月リフォーム済
  • ホテルライクなデザインの贅沢な水回り
  • 大阪モノレール本線「柴原阪大前」駅…徒歩8分
  • 豊中市立桜井谷小学校…徒歩13分
  • 豊中市立第十三中学校…徒歩8分

物件概要

物件番号 2372 土地権利 所有権
種目 中古マンション
物件名 豊中柴原シティハウス(3階部分) 建築確認番号
住所1 豊中市柴原町2丁目 住所2 6-3
小学校区 桜井谷小学校 中学校区 第十三中学校
交通 大阪モノレール「柴原阪大前」駅徒歩約8分
バス停手段
土地面積(㎡) セットバック面積(㎡)
地目 現況 空家
地勢 私道面積
建物構造 RC 西暦築年月 1992年03月
建物面積(㎡) 96.13 間取 3DK+1S
バルコニー面積(㎡) バルコニー方向 南東
建物階数 6階建 所在階 3階部分
管理費 月額 17,150円 修繕積立金 月額 18,280円
管理会社 ㈱合人社計画研究所 管理形態 全部委託(日勤)
駐車場 駐車場月額 14,500~15,000円
総戸数 18戸 引渡し時期 相談
ペット飼育 リフォーム 新規リフォーム済
接道(全て)
都市計画 市街化区域 国土法届出 不要
用途地域1 第一種中高層住居専用地域 用途地域2
建ぺい率1 建ぺい率2
容積率1 容積率2
特色 90㎡越え3LDK ペット飼育可
不動産周辺状況 (周辺情報)柴原町2丁目 🛍買物 🛒スーパー ↓ ◎生活協同組合コープこうべ コープミニ桜の町 ◎万代 豊中本町店 ◎フードネットマート 桜の町店 🏪コンビニエンスストア ↓ ◎ローソン 豊中桜の町一丁目店 ◎ローソン 市立豊中病院店 ◎ローソン 豊中柴原町三丁目店 💊ドラッグストア ↓ ◎アップル薬局 桜の町店 ◎なの花薬局 柴原店 ◎大阪柴原駅さくら薬局 🎏子供用品店 ↓ ◎ママフル蛍池店 ◎西松屋 豊中永楽荘店 ◎いしばしや 🧰家電量販店・ホームセンター ↓ ◎エディオン柴原店 ◎ソナス ◎田中無線 🩺病院 🏥総合病院 ↓ ◎市立豊中病院 ◎箕面市立病院 ◎市立池田病院 👨‍👩‍👧‍👦小児科 ↓ ◎吉田小児科医院 ◎橋本小児科 ◎佐守小児科 🏫幼稚園 ↓ ◎あけぼのひだまり保育園 ◎シャイニーキッズグランデファイン ◎幼保連携型認定こども園神童幼稚園 🛝公園 ◎柴原南公園 ◎天神公園 ◎柴原公園
取引条件有効期限

ローンを組むにあたり、月々の返済額をシミュレーションします。

ローンシミュレーション

物件価格
頭金 万円
金利 %
借入期間
月々の返済額
年間の返済額
返済総額
利息合計

※ 毎回の返済額が開始から終了まで均等となる「元利均等返済」で算出 ※ 金利は期間中固定となる固定金利を採用 ※ 月々の返済額は小数点以下を繰り上げ ※ 結果は目安、概算としてご利用下さい。ローンのご契約の際は詳細をご確認ください。 ※ ご契約時には諸費用・税金(手数料や印紙税、保証料など)が別途かかります。

お問合せ
お名前
メールアドレス
お問合せ内容
お名前
メールアドレス
お問合せ内容

メールを送信しました。 確認後ご返信致しますのでしばらくお待ちください。