2304 藤和東豊中ホームズ(4階部分)

↓お問合せ
中古マンション [価格]2,850万円
種目 物件名 沿線
駅名
土地面積(㎡)
建物面積(㎡)
建物構造
間取
中古マンション 藤和東豊中ホームズ(4階部分) 『大阪モノレール線』少路駅
78.27
RC
3LDK
↓お問合せ
中古マンション [価格]2,850万円
種目 中古マンション
物件名 藤和東豊中ホームズ(4階部分)
沿線駅名 『大阪モノレール線』少路駅
土地面積(㎡)
建物面積(㎡)

78.27
建物構造
間取
RC
3LDK

物件のポイント

◎2025年7月新規リフォーム済
(キッチン、トイレ新調など)

◎TVモニター付きインターホン

◎全居室収納あり

◎浴室乾燥機付き

◎南向きワイルドバルコニーにつき陽当たり・通風良好

◎ペット飼育可(規約あり)

◎徒歩圏内に学校、買い物施設が充実♪
♪熊野田小学校 約600m
♪第十五中学校 約900m
♪フレンドマート 約250m

その他物件情報はコチラ

物件概要

物件番号 2304 土地権利 所有権
種目 中古マンション
物件名 藤和東豊中ホームズ(4階部分) 建築確認番号
住所1 豊中市熊野町4丁目 住所2 10-1
小学校区 熊野田小学校 中学校区 第十五中学校
交通 大阪モノレール「少路」駅徒歩約20分
バス停手段
土地面積(㎡) セットバック面積(㎡)
地目 宅地 現況 空家
地勢 平坦 私道面積
建物構造 RC 西暦築年月 1995年03月
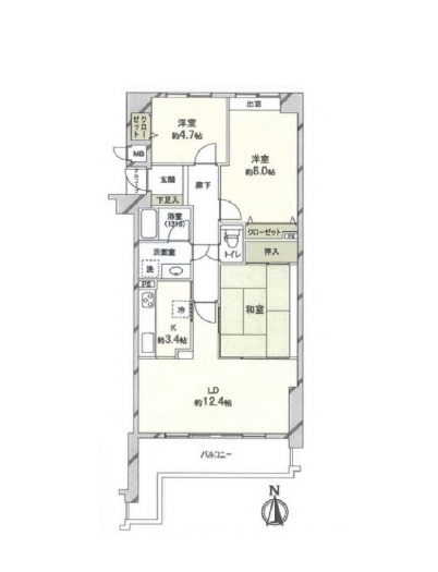
建物面積(㎡) 78.27 間取 3LDK
バルコニー面積(㎡) 10.05 バルコニー方向
建物階数 7階建 所在階 4階部分
管理費 月額 10,150円 修繕積立金 月額 23,500円
管理会社 管理形態 全部委託
駐車場 駐車場月額 10,000~16,000円/月
総戸数 51戸 引渡し時期 即引渡可
ペット飼育 リフォーム 新規リフォーム済
接道(全て)
都市計画 市街化区域 国土法届出 不要
用途地域1 第一種中高層住居専用地域 用途地域2
建ぺい率1 建ぺい率2
容積率1 容積率2
特色 2025年7月新規リフォーム済
不動産周辺状況 (周辺情報)熊野町4丁目 🛍買物 🛒スーパー ↓ ◎ikari(いかり) 豊中店 ◎フレスコ 熊野店 ◎シェフカワカミ 東豊中店 🏪コンビニエンスストア ↓ ◎ローソン 豊中熊野町四丁目店 ◎ファミリーマート 豊中旭丘店 ◎ローソン 東豊中町六丁目店 💊ドラッグストア ↓ ◎セレブ薬局上野東店 ◎シグマ薬品株式会社東豊中店 ◎スーパードラッグシグマ東豊中店 🎏子供用品店 ↓ ◎トイ・ホビーハウス ロビンフット ◎わんわん堂 ◎丸中おもちゃ 🧰家電量販店・ホームセンター ↓ ◎四宮電気店 ◎マルミヤ電器泉ケ丘 ◎ハラデン 東豊中店 🩺病院 🏥総合病院 ↓ ◎市立豊中病院 ◎大阪府済生会千里病院 ◎箕面市立病院 👨‍👩‍👧‍👦小児科 ↓ ◎なんばこどもクリニック ◎橋本小児科 ◎川口こどもクリニック 🏫幼稚園 ↓ ◎くまのだ保育園 ◎園熊野田幼稚園 ◎認定こども園バンビーニくまのだ 🛝公園 ◎熊野北公園 ◎兎川公園 ◎熊野町4丁目緑地
取引条件有効期限

ローンを組むにあたり、月々の返済額をシミュレーションします。

ローンシミュレーション

物件価格
頭金 万円
金利 %
借入期間
月々の返済額
年間の返済額
返済総額
利息合計

※ 毎回の返済額が開始から終了まで均等となる「元利均等返済」で算出 ※ 金利は期間中固定となる固定金利を採用 ※ 月々の返済額は小数点以下を繰り上げ ※ 結果は目安、概算としてご利用下さい。ローンのご契約の際は詳細をご確認ください。 ※ ご契約時には諸費用・税金(手数料や印紙税、保証料など)が別途かかります。

お問合せ
お名前
メールアドレス
お問合せ内容
お名前
メールアドレス
お問合せ内容

メールを送信しました。 確認後ご返信致しますのでしばらくお待ちください。